







ID - P179119
Descoperă confortul unui apartament complet mobilat și utilat, aflat într-un imobil nou, cochet, situat într-una dintre cele mai liniștite și verzi zone din nordul Capitalei – Băneasa / Sisești.
📍 Locație: Zona Băneasa – Sisești
🏢 Etaj: 2 din 3 | Bloc finalizat recent
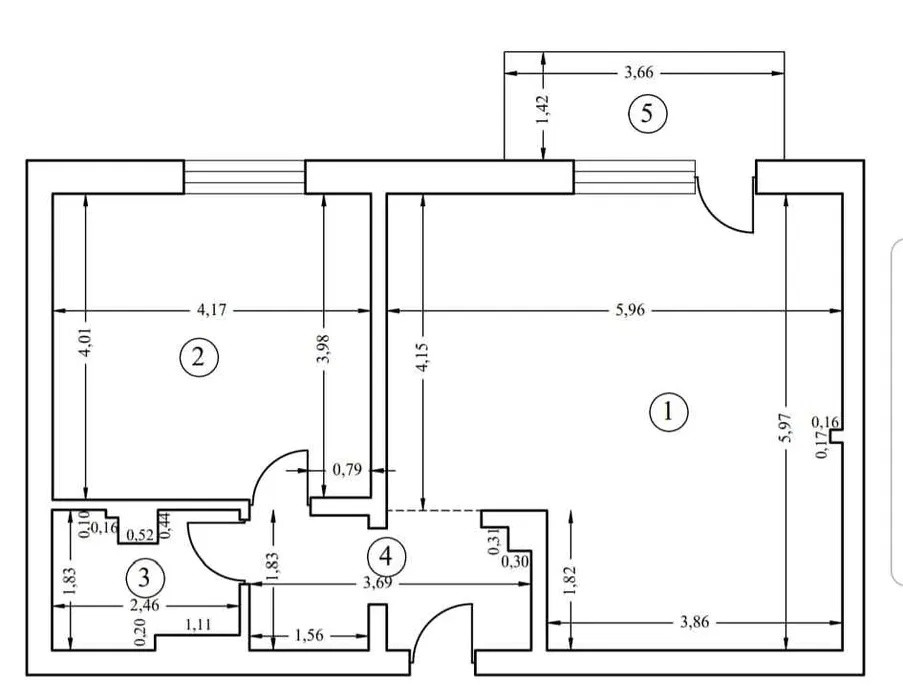
📐 Suprafață: 60 mp utili + balcon de 5 mp
🚗 Loc de parcare: subteran, inclus în preț
🌳 Curte comună amenajată de 800 mp – spațiu ideal pentru relaxare
Detalii și dotări:
Complet mobilat și utilat modern, la prima închiriere
Bucătărie echipată cu electrocasnice: mașină de spălat vase, cuptor, plită, hotă, frigider
Mașină de spălat rufe, aer condiționat, Smart TV
Încălzire prin centrală proprie – costuri eficiente
Bloc retras de la strada principală – liniște, intimitate și aer curat
Locația asigură acces rapid către zona de birouri din Pipera, Băneasa Shopping City, Aeroportul Otopeni, Parcul Herăstrău și mijloace de transport în comun.
Ideal pentru un cuplu, expați sau persoane care își doresc un stil de viață echilibrat, cu acces facil către oraș.
Disponibil imediat!